


ー鉄と木のハイブリッド構造による木質耐火建築物のプロトタイプー
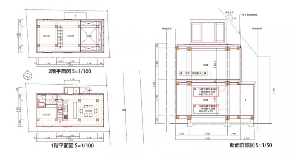
鋼材内蔵型耐火部材は、その名の通り、内部に鋼材を内蔵した集成材である。2000年の建築基準法改正により、木造による耐火建築物を可能とする法的枠組がつくられて以降、耐火建築物を構成する部材として開発が進められてきた。現在までのところ、柱と梁について1時間耐火国土交通省大臣認定が取得されている。これにより、従来の木質材料では建てることのできなかった耐火建築物の実現が可能となった。耐火建築物であることが要求される4階建てのオフィスビル、庁舎や学校・幼稚園、共同住宅など都市における主要な建築物の多くを木質構造とできる糸口が見出された。
鋼材内蔵型耐火部材において、集成材は中の鋼材に対する耐火被覆の役割を担っている。鋼材の周囲の集成材は、火災による加熱によって一定のスピードで燃焼するが、燃え尽きることはなく、ある段階になると耐火構造の条件である「燃えどまり」が起こる事が実験で確認されている。また、集成材部分は耐火被覆として働くだけでなく、地震・風荷重に対しては鋼材の座屈止めとして構造的にも有効に機能する。さらに集成材部分はそのまま仕上げ材ともなるなど、鉄と木のハイブリッドのメリットは大きい。この構造はエムビルにおいて初めて試みられた。
ー都市木造を実現する汎用性の高い構造システムー
都市における新しい木造建築「都市木造」には、木質耐火構造のスタンダードが必要である。要町Kビルでは、エムビルを踏まえて、4階建てのオフィスや共同住宅などに実際に展開できるような汎用性の高い木質耐火構造システムの開発を進めている。柱や梁、床、屋根などの主要構造部について、木質耐火仕様を検討し、新規耐火認定の取得を行なう。その際には、エムビルの実現プロセスで明らかになったように、部位相互の接合部における耐火性能等について、実験も含めた詳細な検証が必要である。
設計:クハラ・アーキテクツ+布施靖之建築設計事務所
構造:東京大学腰原研究室
監修:team Timberize
